100) ? false : true; navIsShown = (window.pageYOffset > viewportHeight) ? true : false; triggerTransitions = window.pageYOffset > (viewportHeight / 2) ? true : false; if (navIsOpen && !atTop && !navIsShown) navIsOpen = false; ">
Toggle Nav
Images
Videos
Floor Plans
3D Tour
Map
Scroll to Content
2155 Salmon Valley Ln, El Dorado Hills, CA 95762
Images
Show more
Slideshow
Photo Grid
Hide
Previous
Next
Videos
Multigen
HorizontalGeneral
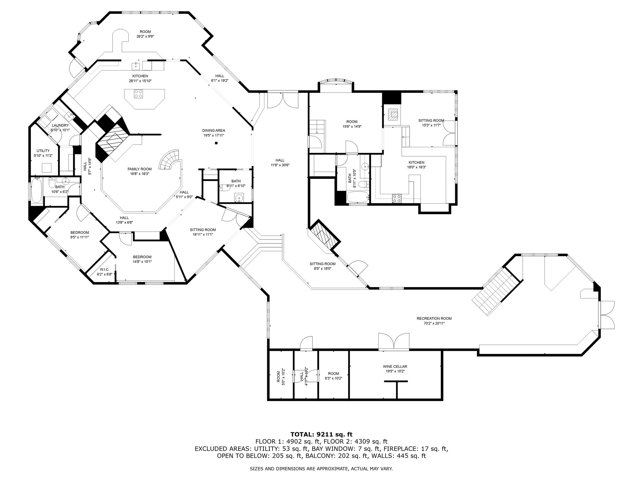
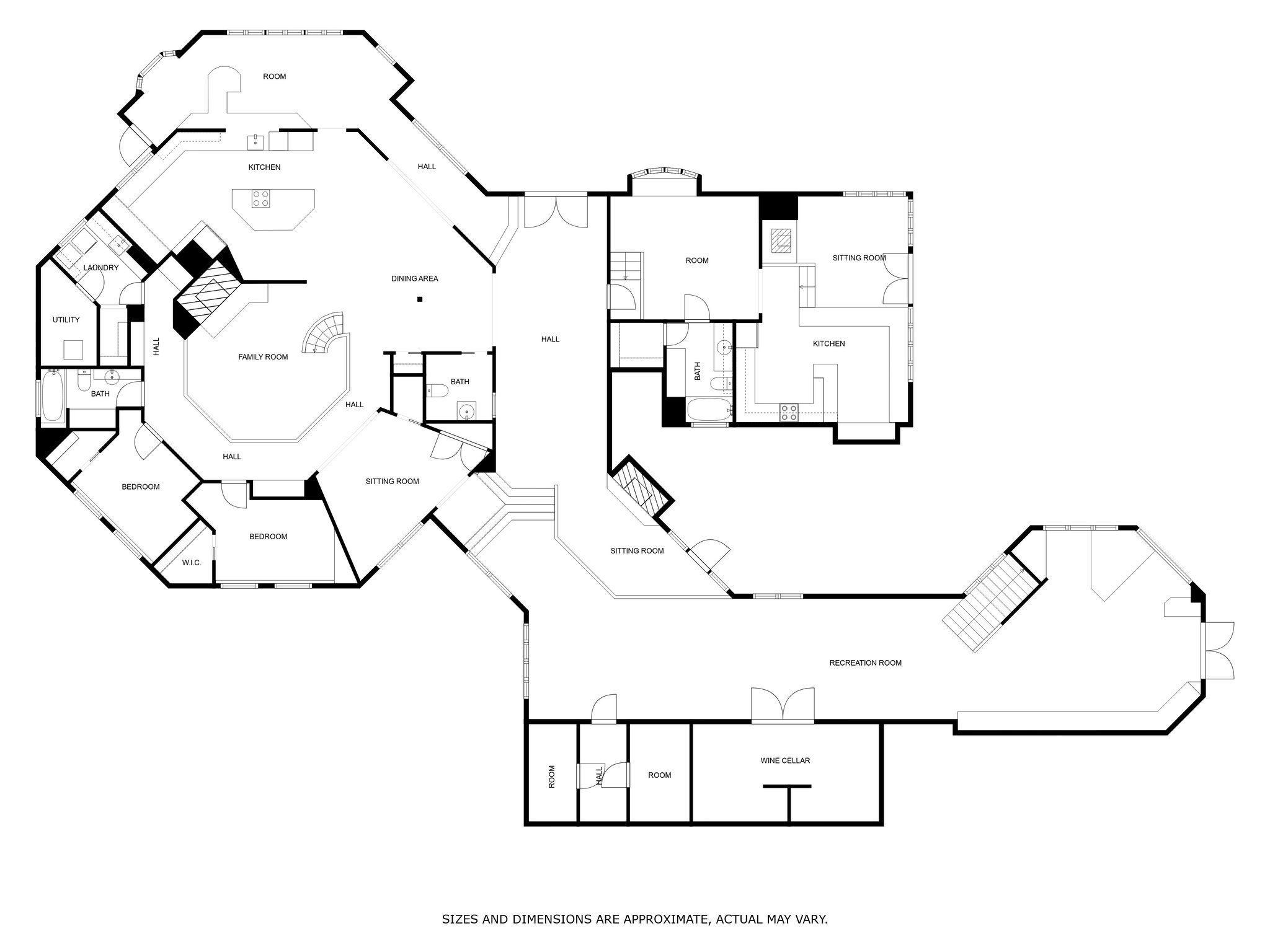
Floor Plans
Slideshow
Photo Grid
Hide
Previous
Next
3D Tour